Solana Beach Residences
Active
Residential
Solana Beach Residences
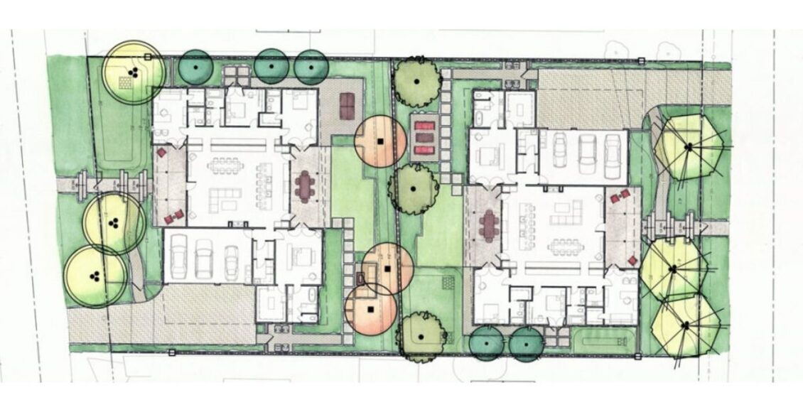
Welcome to Solana Beach Residence – a property with 2 spec homes designed in a modern farmhouse style and located in Solana Beach just south of the San Elijo Lagoon State Marine Conservation Area. The landscape design of each residence incorporates stormwater mitigation features including permeable paving and planted bio retention basins. A different low water plant palette was used for each home to give a unique identity to each property. Each residence includes a private rear yard space including outdoor dining areas, small turf area and a fire table lounge space or space for outdoor games.
LOCATION
Solana Beach, CA
ARCHITECT
HGW ARCHITECTURE



Comments are closed.